產品導航
Product navigation
當前位置:首頁 > 提升機圖紙 > NE100板鏈斗式提升機地基及外形尺寸總裝圖
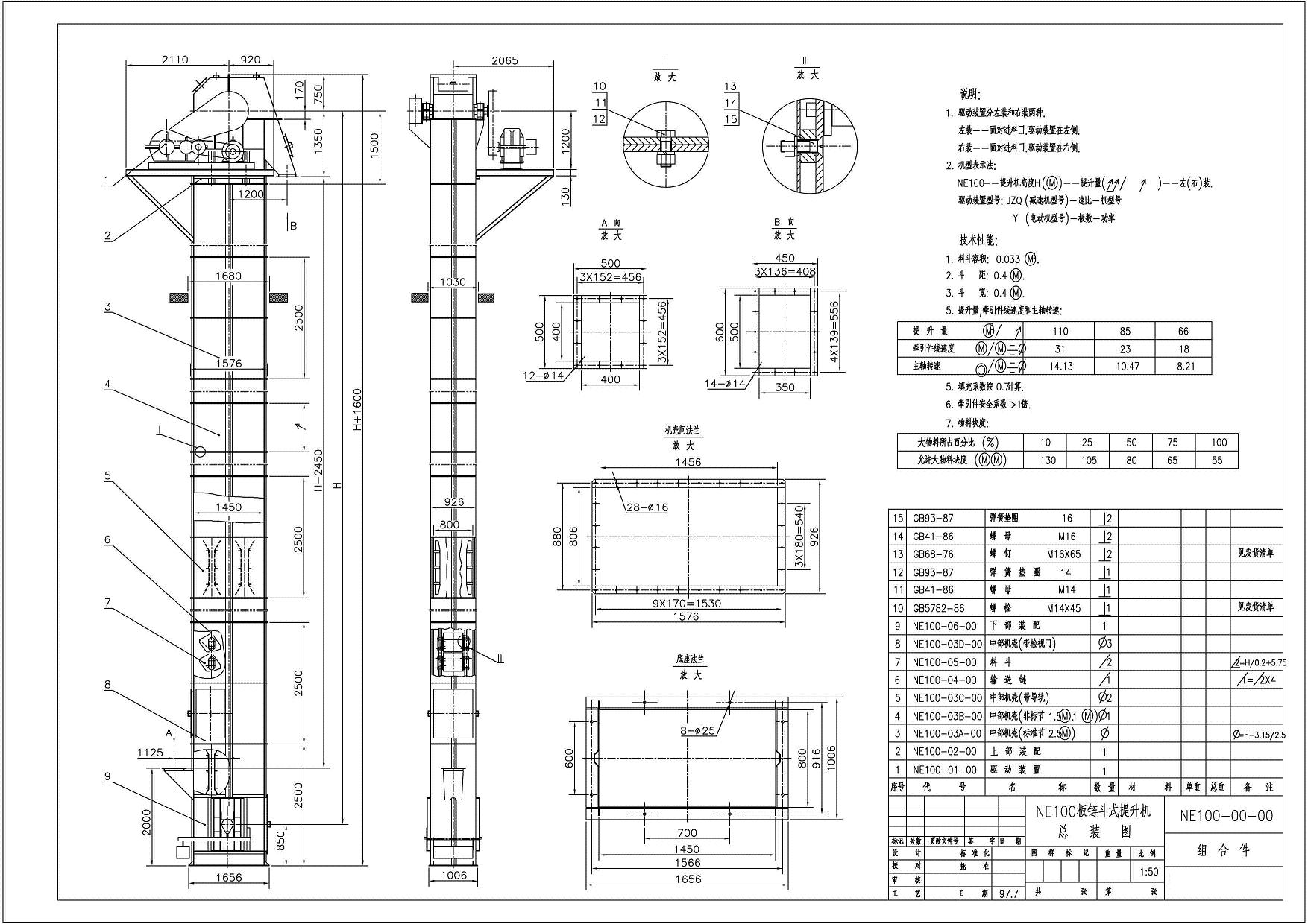
NE100板鏈斗式提升機地基及外形尺寸總裝圖
發布人:新鄉天太斗式提升機廠家 發布時間:2019-10-17
NE100板鏈斗式提升機地基及外形尺寸總裝圖
NE100斗式提升機為雙排板鏈傳動,提升高度在10~39米的情況下輸送量是100m3/h,斗速0.5m/s、輸送物料粒度<70mm、斗容35L、斗寬400mm、斗距400mm。
本文標簽: NE100斗式提升機 板鏈斗式提升機 外形圖 NE100提升機
版權說明:如非注明,本站文章均為新鄉天太斗式提升機廠家原創,轉載請注明出處和附帶NE100板鏈斗式提升機地基及外形尺寸總裝圖本文鏈接。


